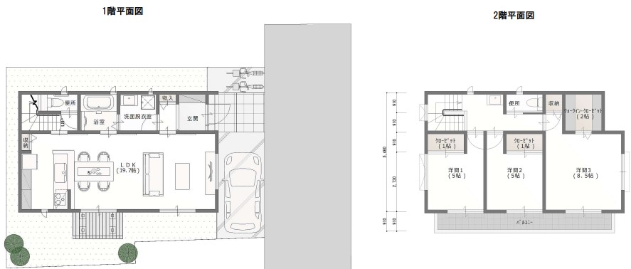
成約物件物件 ホーム > 販売中物件 > 世田谷区代田一丁目 土地×31坪(A区画) 成約物件 #その他#収益物件 世田谷区代田一丁目 土地×31坪(A区画) 種別 土地 所在地 世田谷区代田一丁目 建物面積/土地面積 - 築年月 - 価格 10,980万円 交通 小田急線「世田谷代田駅」徒歩10分 間取り - その他 土地面積/102.46㎡(31.0坪) 建ぺい率/50 %、容積率/150 % 用途地域/1種低層、地目/宅地 権利/所有権 一覧へ戻る