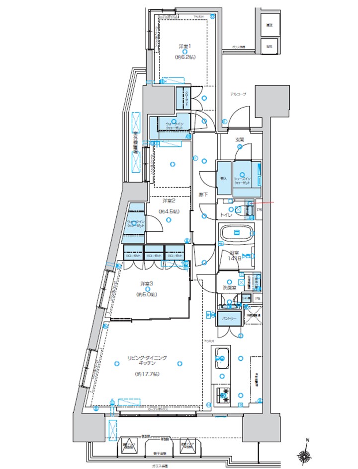
成約物件物件 ホーム > 販売中物件 > プレシスタワー三島広小路 成約物件 #その他#収益物件 プレシスタワー三島広小路 種別 マンション 所在地 静岡県三島市本町 建物面積/土地面積 80.12㎡ 築年月 2025年2月 価格 5,980万円 交通 伊豆箱根鉄道駿豆線「三島広小路」駅徒歩2分/JR東海道本線「三島」駅徒歩13分 間取り 3LDK その他 一覧へ戻る