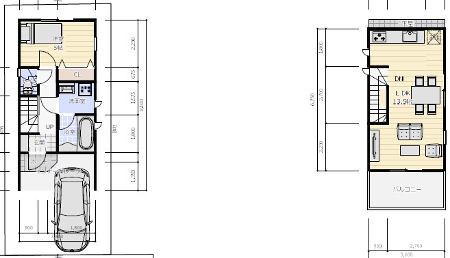
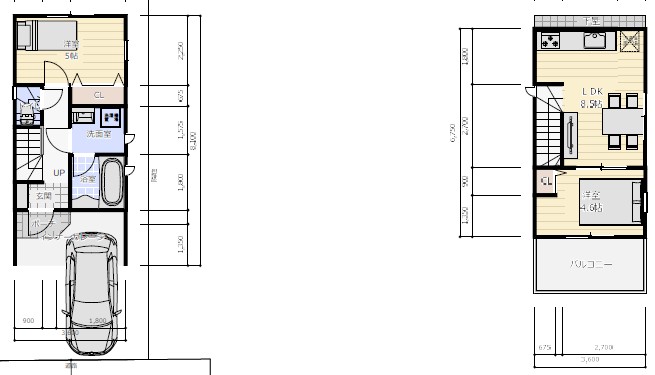
成約物件物件 ホーム > 販売中物件 > 所沢市西狭山ヶ丘一丁目 古家付土地(当社売主) 成約物件 #その他#収益物件 所沢市西狭山ヶ丘一丁目 古家付土地(当社売主) 種別 古家付土地 所在地 埼玉県所沢市西狭山ヶ丘一丁目 建物面積/土地面積 60.1㎡ 築年月 価格 340万円 交通 西武池袋線「狭山ヶ丘」駅 徒歩15分 間取り その他 建て替えの場合 参考プラン建築会社:プライム上場企業(グループ会社)参考建物価格 → 950万円(税込) 外構工事費、付帯設備工事費、一般諸経費他→550万円(税込) 合計:1500万円(税込) 土地・建物 月々4万円台 一覧へ戻る